heusch.inc
architecture & interior design
Architecture
Interior
Furniture / Objects
Studio
Press
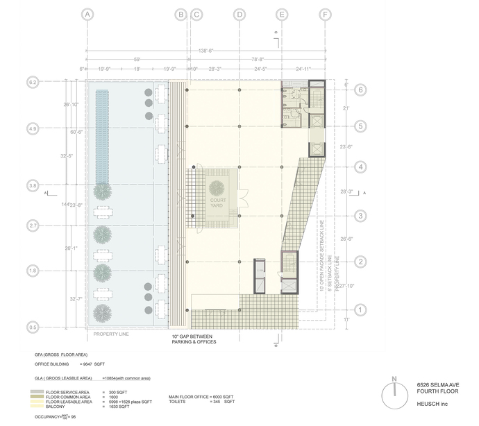
Selma Office Bldg
Hollywood, USA
2015